 |
Описание |
 |
Как устроен декоративный забор
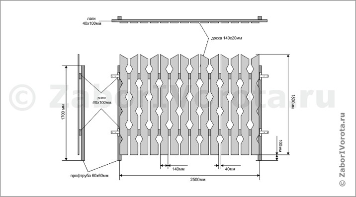
Заборная секция Декор №4 состоит из
строганной заборной доски хвойных пород (сосна). Толщина доски 20 мм,
ширина 140 мм, высота 1800 мм, влажность – 14-16 %. Доска имеет по боковым поверхностям широкие треугольные выпилы, верхняя часть доски срезана наискось. Лаги изготовлены из бруска сечением 40х80 мм, они крепятся к
металлическим опорным столбам забора. Ширина стандартной секции 2500
мм, высота 1800 мм. Доска монтируется к деревянным лагам с просветом 40
мм, в секции 14 досок. Забор поставляется в разобранном виде, в виде комплектующих, и устанавливается на месте сборки.
Применение декоративных заборов
Декоративные заборы из дерева очень
популярны в настоящее время. Натуральный материал, обладающий
неповторимой структурой заслуженно пользуется широким спросом, сочетаясь
с практически любым дизайном участка. Оригинальная декоративная доска
с художественно оформленными краями придает таким заборам оригинальный и
привлекательный вид. Заборы Декор из дерева гармонично сочетаются не
только с металлическими, но и с кирпичными столбами или столбами из
бетонных заборных блоков, что позволяет использовать их для
строительства комбинированных заборов.
 |
Технологии монтажа |
 |
Подготовка к строительству
Строительство любого забора
начинается с замера участка, его разметки, определения расположения
столбов забора и входной группы. Также на этом этапе производится
демонтаж старого ограждения (если нужно), очищается периметр установки:
удаляются камни, кусты, деревья и другие препятствия, мешающие
установке.
Монтаж столбов декоративного забора
Установка забора на металлических
столбах производится тремя основными способами: забивкой, забутовкой и
бетонированием в грунте. Забивку выполняют на пучинистых грунтах, при
этом бурится ручным буром неглубокое (до 500 мм) отверстие малого
диаметра, в которое вставляют столб и забивают кувалдой. Глубина
установки при забивке до 1200 мм. Забутовку выполняют на грунтах с
сезонной пучинистостью, при этом в грунте бурят отверстие диаметром 150
мм, вставляют столб и трамбуют песком и щебнем. Глубина установки
1200-1500 мм. Бетонирование производят на устойчивых почвах: бурят
отверстие диаметром 150-200 мм, вставляют столб и заливают бетонной
смесью.
Заполнение пролетов забора
После установки столбов производится монтаж пролетов. К столбам забора при помощи специальных кронштейнов
прикрепляют деревянные заборные лаги. К поперечным лагам монтируют
доски забора с просветом 40 мм. По желанию заказчика просвет может быть
увеличен или уменьшен. Крепеж доски производится оцинкованными
саморезами по дереву.
Установка декоративных заборов
Компания ZABORIVOROTA производит установку деревянных заборов
в Москве, Московской области и соседних регионах. Мы гарантируем
качественную и грамотную установку ограждений любого типа на вашем
участке. Красивые и прочные декоративные заборы из сосны послужат
украшением дачного, садового или загородного участка.