+7-495-532-87-75
+7-925 82-787-82
О компании УСЛУГИ/ЦЕНЫ КАЛЬКУЛЯТОР ЗАБОРОВ ОПЛАТА | ДОСТАВКА КАК СДЕЛАТЬ ЗАКАЗ СТАТЬИ ФОТО ЗАБОРОВ КОНТАКТЫ
ИНТЕРНЕТ-МАГАЗИН:


Красивые кованые ворота STALRUZ










Купить металлический штакетник



Авторизация:
логин:
пароль:
Запомнить
Поиск по сайту
Корзина:
проверка заказа on-line
выбрано товаров:
--
 шт.
на сумму:
0
рублей
Главная ДЕРЕВЯННЫЕ ЗАБОРЫ заборы Декор из лиственницы Забор из доски лиственницы ДЕКОР № 16
1 | 2 | 3 | 4 | 5 | 6 | 7 | 8

Забор из доски лиственницы ДЕКОР № 16 : 0 рублей 

Цена секции деревянного забора за комплект без сборки
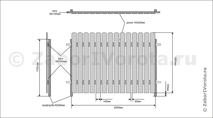
Размеры секции: 2500х1800 мм
Ширина доски: 140 мм
Высота доски: 1800 мм
Количество досок в секции: 14 шт

Характеристики

Описание

Технологии монтажа

  Фото 

обратно в раздел
Сравнить
сравнить
прайс-лист каталога

С этим товаром покупают

Декоративная доска Декор № 16 лиственница
Декоративная доска Декор № 16 лиственница
Декоративная доска Декор № 16 лиственница   0 рублей  

Цена доски – по запросу

Размеры: 20х140х1800 мм

Древесина: лиственница

Категория: А-В

Влажность: 12-15% (сухая)

подробнее
в корзину
Брусок строганный 40х60х3000 мм
Брусок строганный 40х60х3000 мм
Брусок строганный 40х60х3000 мм   360 рублей  

Цена бруска -  360 руб/шт

Древесина: хвойных пород

Сорт: 1-й

Влажность: 12-155

подробнее
в корзину
Крепеж для столба 60х60 мм под дерево № 11
Крепеж для столба 60х60 мм под дерево № 11
Крепеж для столба 60х60 мм под дерево № 11   170 рублей  
Цена кронштейна - 170 руб/шт
Тип: для забора из дерева
На профильный столб: 60х60 мм

Для деревянных лаг

Вес: 260 г
Окрашивание: порошковое
Цвет: RAL: 8017
подробнее
в корзину
Столб для забора G1 60х60х3000 мм
Столб для забора G1 60х60х3000 мм
Столб для забора G1 60х60х3000 мм   1 615 рублей  
Цена за столб - 1 615 руб.
Размер: 60х60х3000 мм
Толщина стали: 2 мм
Окрашивание: грунт PREMIER G1.61
Цвет: серый
подробнее
в корзину
Tikkurila Valtty Puuoljy масло для дерева
Tikkurila Valtty Puuoljy масло для дерева
Tikkurila Valtty Puuoljy масло для дерева   5 500 рублей  
Цена за банку 9 л. - 5500 руб.
Тип: масло для дерева
Цвет: бесцветный
Колеровка: по каталогу Tikkurila
Блеск: не определяется
Разбавитель: Уайт-спирит 1050
Расход: 1 л на 5-7 м2
Производитель: Tikkurila
подробнее
в корзину