 |
Характеристики |
 |
Комплектация декоративного забора
Забор Эклектика-3 представляет собой сварные секции с заполнением из доски «Декор» и используется для ограждения дачных, загородных участков, коттеджей и частных домовладений.
Цена одной секции забора складывается из стоимости металлического профильного столба, сварной секции, фигурной доски Декор № 3 и саморезов для крепления доски.
Стоимость секции декоративного забора
|
Наименование материалов |
Ед. изм. |
Кол-во |
Цена |
Стоимость |
|
Столб профильный 60х60х2х3000 мм, грунт-эмаль |
шт. |
1 |
1890,00 |
1890,00 |
|
Крышка декоративная металлическая Кольца 60х60 мм, грунт-эмаль |
шт. |
1 |
195,00 |
500,00 |
|
Секция сварная Эклектика № 3 1800х3000 мм, грунт-эмаль |
шт. |
1 |
16000,00 |
16000,00 |
|
Доска лиственницы Декор № 2 20х140х1800 мм, влажность 12-15 % |
шт. |
10 |
800,00 |
8000,00 |
|
Саморез оцинкованный |
шт. |
40 |
3,50 |
140,00 |
|
ИТОГО: 26 390 руб. |
Секция поставляется в разобранном виде!
По желанию заказчика конструкция забора может быть изменена, декоративная доска из сосны или лиственницы для обшивки секций может быть выбрана из 26 моделей на нашем сайте..
Покраска доски
С целью продлить срок эксплуатации доску «Декор» для забора защищают от агрессивных воздействий окружающей среды - повышенной влажности, температурных перепадов, плесени и грибка, насекомых с помощью современных защитных материалов: антисептиков Неомид, биозащитных составов Акватекс, краски по дереву, лессирующих антисептиков Tikkurila и др.
Стоимость покраски доски
|
Виды отделки |
Ед/изм |
Стоимость |
|
Антисептирование доски в 1 слой |
кв. м |
50 |
|
Покраска доски в 1 слой |
кв. м |
от 75 |
|
Покраска доски в 2 слоя |
кв. м |
от 150 |
Цена указана без учета стоимости материалов.
Как купить декоративный забор
В нашем интернет-магазине вы можете купить декоративный забор Эклектика, для этого нужно положить выбранный товар в корзину, указать количество секций и оформить заказ. Также вы можете сделать заказ по телефону 8 495 532-87-75 (многоканальный) или круглосуточно через форму обратной связи на нашем сайте.
Получить консультацию по расчету забора можно, отправив заявку на расчет или по телефону у менеджеров нашей компании. Специалисты компании произведут расчет всех необходимых материалов и комплектующих для вашего ограждения.
 |
Описание |
 |
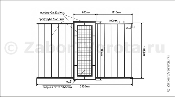
Конструкция забора
Забор декоративный Эклектика-3 состоит из сварных секций, обшитых доской серии «Декор». В качестве столбов забора используется профтруба сечением 80х80 мм. Столбы закрываются декоративными крышками «Кольца». Пролет забора представляет собой сварную металлическую секцию со вставкой из сетки посредине, которая монтируется к столбам при помощи сварки. Ширина секции забора составляет 3000 мм. Столбы и секции окрашиваются краской по металлу для защиты от коррозии.
В качестве обшивки применяется строганная доска серии «Декор» 20х140х1800 мм, которая имеет боковые треугольные выпилы. В секции 10 досок. По желанию заказчика доска может быть окрашена антисептиками и красками по дереву.
Сочетание металла и дерева гармонично не только с практической, но и с эстетической точки зрения. Заборы этой серии обладает высокими декоративными свойствами, сохраняя при этом отличные защитные качества.
Серия заборов Эклектика относится к категории декоративных ограждений, главным достоинством которых является его эффектный внешний вид. Деревянный забор на металлическом каркасе удачно впишется в любой ландшафт и дизайн загородного участка. Гармоничная комбинация дерева и металла способна составить реальную конкуренцию эксклюзивным и дорогим изделиям художественной ковки.
 |
Технологии монтажа |
 |
Как правильно установить декоративный забор
1. Подготовка к строительству
Подготовительные работы имеют общий характер: территория обмеряется, растения и посторонние предметы по линии забора удаляются, поверхность почвы выравнивается. По данным замеров специалисты производят точный расчет количества заборных секций и комплекта материалов для монтажа ограждения. Для территорий с неровным рельефом установка забора может осуществляться ступенчатым методом.
2. Монтаж столбов
Установка столбов забора может производиться различными методами: при помощи забивки в грунт, забутовки (трамбовки щебнем), бетонирование в грунте или бетонированием в ленточном фундаменте. Использовать тот или иной способ монтажа столбов следует с учетом особенностей грунта (насыщения влагой, пучинистости и пр.)
Правильно выполненная установка столбов обеспечит жесткость и неподвижность конструкции забора.
3. Монтаж пролетов забора
К установленным столбам при помощи сварки прикрепляют секцию забора. Сварные швы зачищают и подкрашивают. На секцию крепят доску: ее фиксируют при помощи оцинкованных саморезов, используя по 4 шт. на одну планку. Доска прикрепляется по бокам секции между вертикальными прутьями решетки.
Строительство заборов
Наша компания осуществляет качественную установку декоративного забора любой протяженности и сложности в Подмосковье и соседних регионах. Современные, прочные, долговечные и красивые заборы от компании ZABORIVOROTA не только надежно защитят любой участок, но и будут долгие годы радовать вас привлекательным внешним видом и качеством монтажа.